0131 374 1111
£195,000 per annum

46-50 Argyll Arcade

Glasgow, G2 8BG

The Space

Prominent Corner Unit - To Let / May Sell. Glasgow's Prime Jewellery Pitch

At a glance

Property Type
Tenure To Let
Size 1,323 to 3,873 sq ft
Rent £195,000 per annum
Business Rates £78,819 per annum
Service Charge £50,750 per annum
Energy Performance Rating Upon enquiry

Argyle Street
3 mins


Glasgow Central
3 mins


Glasgow Queen Street
5 mins


High Street (Glasgow)
10 mins


Chesham
6240 mins


Amersham
6279 mins


Chalfont and Latimer
6303 mins


Chorleywood
6335 mins


Key Points

  • Prime Corner Location
  • Large Glazed Frontage
  • Fitted Out To a High Standard

Description

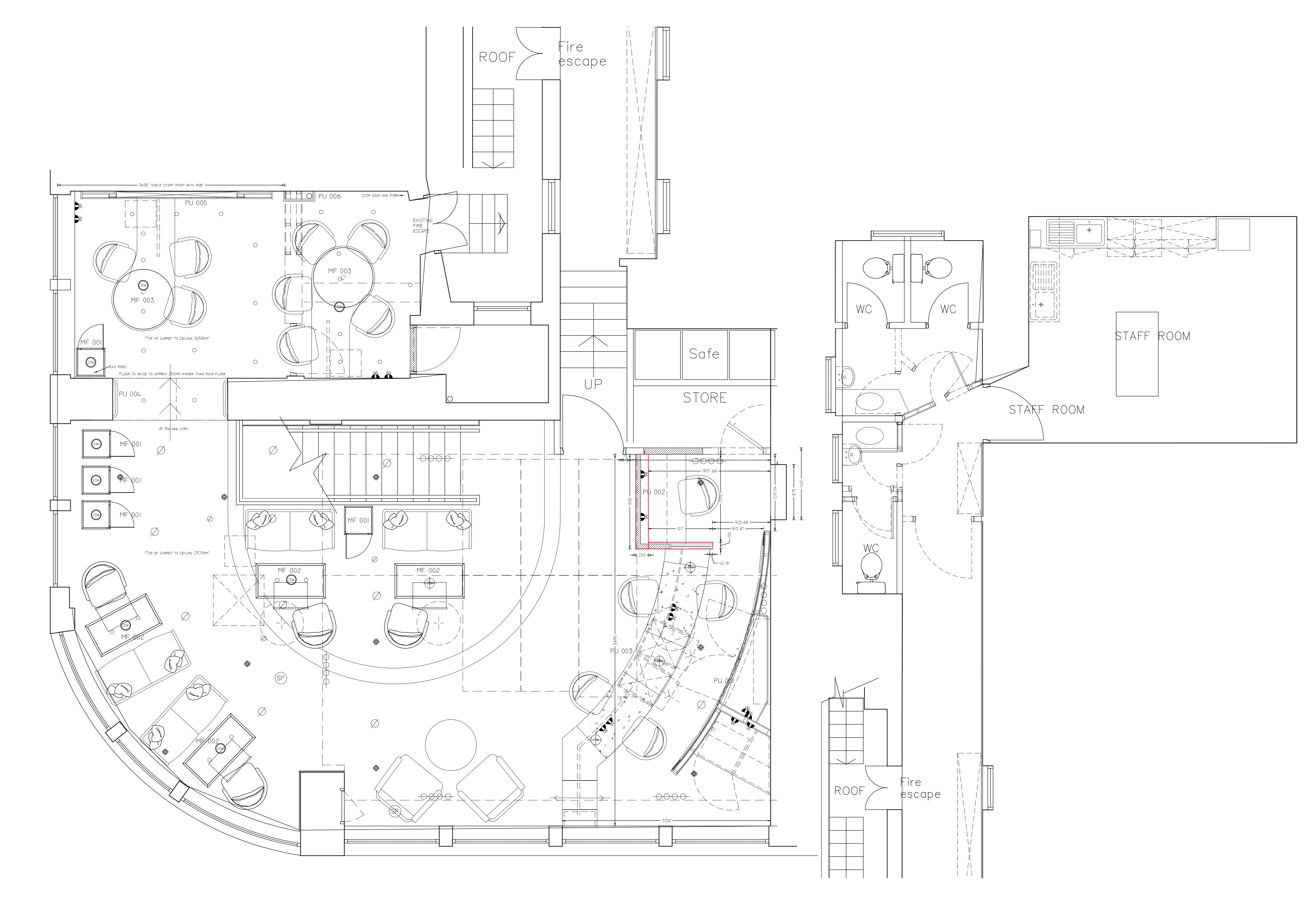
The premises are situated in the centre of Argyll Arcade, boasting a large glazed frontage wrapping around the entirety of the unit. Internally, the premises are currently fitted out to an exceptional standard to facilitate its current use as a jewellery shop. The ground floor layout provides a large sales area with several display cases and two dedicated fitting areas whilst the first floor is currently utilised for personal brand experiences. The staff area and W/C facilities are also located on the first floor, situated to the rear of premises.

Available area

The property benefits from a basement which is used for additional storage space. The premises are arranged over ground, first and basement levels and comprise the following approximate net internal areas:

Name sq ft sq m
Ground - Sales 1,323 122.91
Ground - Back of House 215 19.97
1st - Sales 893 82.96
1st - Back of House 689 64.01
Basement - Storage 753 69.96

The Location

Situated just off Buchanan Street in Glasgow’s City Centre, Argyll Arcade hosts more than 30 luxury jewellers, watchmakers and diamond merchants all under the same roof. The arcade is widely regarded as the No.1 premier destination for high-end jewellers in Scotland. The subjects occupy a prime corner position on the south side of the arcade, benefitting from significant footfall and surrounded by several other well known retailers including Rox, Mappin & Webb, Chisholm Hunter, James Porter & Son and Gucci.

£195,000 per annum

Registered in Scotland No. SC647800