0131 374 1111
Under Offer
£14,500 per annum

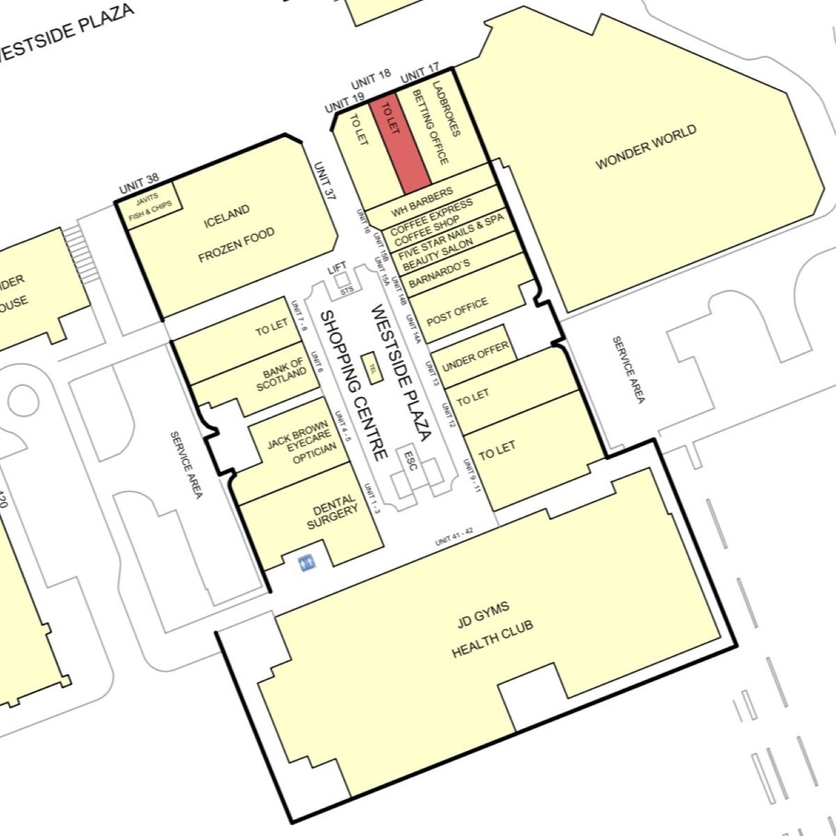
Unit 18

Westside Plaza, Edinburgh, EH14 2SW

The Space

Retail Unit to Let
External Frontage

At a glance

Property Type
Tenure To Let
Size 956 sq ft
Rent £14,500 per annum
Business Rates £5,528 per annum The premises qualify for 100% rates relief (No rates payable) under the small business bonus scheme. Each interested party should satisfy themselves on the rates relief with the appropriate authority.
Service Charge £9,392 per annum
Energy Performance Rating Upon enquiry

Wester Hailes
2 mins


Kingsknowe
15 mins


Edinburgh Park
24 mins


South Gyle
30 mins


Chesham
5998 mins


Amersham
6039 mins


Chalfont and Latimer
6060 mins


Chorleywood
6089 mins


Available area

The premises are arranged over the ground floor of the shopping centre and comprise the following approximate net internal area:

Name sq ft sq m Availability
Ground - Sales 956 88.82 Available
Total 956 88.82

The Location

Westside Plaza is a suburban shopping centre on the outskirts of Edinburgh with an annual footfall of approximately 2 million and a primary catchment of 960,000. The scheme comprises approximately 170,000 sq ft of accommodation, 350 car parking spaces and benefits from a strong mix of retail and leisure uses. Leisure operators include Odeon and xercise4Less and major retail tenants include Lidl, Greggs, Lloyds Pharmacy, The Post Office and Iceland. Nearby occupiers to the unit include William Hill, Iceland, Card Factory and Bank of Scotland.

£14,500 per annum

Registered in Scotland No. SC647800